021 Neue Sporthalle Forelstrasse
Offener Wettbewerb, 2023, 2. Rundgang
mit Tremp Landschaftsarchitekten, Timbatec Holzbauingenieure und Amstein + Walthert
Die Festhalle Bern auf dem Expoareal wird Mitte 2023 abgebrochen. Unser Konzept für die neue Sporthalle Forelstrasse in Ostermundigen sieht vor, acht Dreigelenkbogen der Festhalle als Haupttragwerk wiederzuverwenden. Das Gebäude soll weitgehend nach dem Grundsatz Design for Disassembly erstellt werden. Die Bauteile werden so gefügt, dass diese in Einzelteile demontierbar und trennbar sind. Nach einem künftigen Rückbau des Gebäudes gelangen die Baustoffe zurück in den Materialkreislauf. So werden Ressourcen geschont und ein wichtiger Beitrag zum zirkulären Bauen geleistet.
Das Bauvolumen entsteht aus den programmatischen Bedürfnissen und orientiert sich sich an den Dimensionen der geplanten Erweiterung der Kletterhalle O’Bloc. Die Gebäudetiefe und die Fassadenhöhe der angrenzenden Bauten werden für die Hauptvolumetrie übernommen, womit ein städtebauliches Ensemble ensteht. Die Ausformulierung der Gebäudeteile widerspiegelt die Nutzung und die Konstruktionsweise der Sporthalle und verleiht dem Gebäude seine eigene Identität.
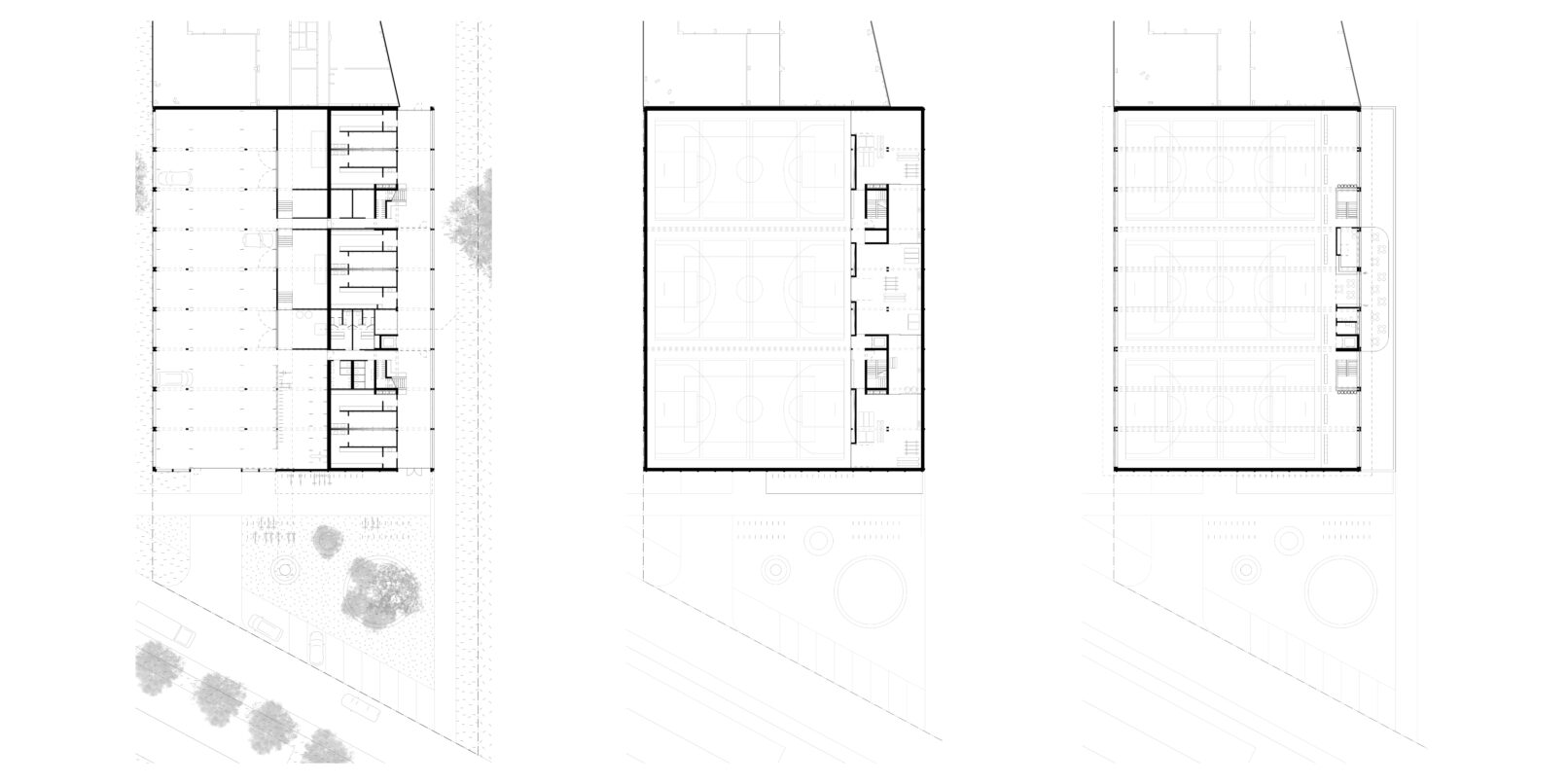
Der grosse Platz vor der Sporthalle dient als Ankunfts- und Aufenthaltsort. Der Hauptzugang zum Gebäude befindet sich in der Südost-Ecke. Vom Eingang gelangen Sportlerinnen und Besucherinnen direkt in einen grosszügigen Korridor, welcher sich entlang der Ostfassade erstreckt. Der breite Gang und die daran angeschlossenen Treppenhäuser erschliessen alle Bereiche der Dreifachsporthalle. Gegenüber einer grosszügigen Verglasung mit Blick aufs Feld sind die Garderoben und weitere Nebenräume angeordnet.
Über zwei vertikale Erschliessungskerne gelangen Sportlerinnen in die Turnhalle und Besucherinnen auf die Tribüne. Über die beiden Treppenhäuser sind alle drei Sporthallen, die Geräte- und Materialräume mit kurzen Wegen erschlossen. Die Aufgänge führen bis zum Zuschauerbereich im zweiten Obergeschoss, wo Besucherinnen den Überblick auf die Spielfelder und den Ausblick auf die angrenzende Landschaft haben.
Von der betonierten Bodenplatte und den Erschliessungen abgesehen, wird die gesamte Turnhalle als Holzbau erstellt. Acht wiederverwendete Dreigelenkbogen mit Zugband überspannen die Turnhalle und Besuchertribüne über 34.00m. Zwischen den Bogenbindern spannen ausgedämmte Hohlkastenelemente über 5.50 m. Die vertikale Last vom Dach wird durch die Bogenbinder in Stützen und anschliessend in die Fundamentplatte abgeleitet.
Die Fassade widerspiegelt das Konstruktionssystem des Gebäudes. Die Längsfassaden sind geprägt von prägnanten Doppelstützen welche die Lastabtragung des Tragwerks abbilden. Westseitig stehen die Holzstützen auf schlanken Betonpfeilern, die im Erdgeschoss die Kollisionssicherheit gewährleisten. Die zur Einstellhalle offenen Felder werden durch Kletterpflanzen begrünt. Ostseitig stehen die Holzstützen auf einem niedrigen Betonsockel, welcher innen als Sitzbank genutzt werden kann.
Die Fassadenfelder sind verglast und südseitig durch eine Vertikallattung geschlossen. Im ersten Obergeschoss ist eine durchgehend opake Fassade mit wiederverwendeten Trapez- oder Wellblechplatten vorgesehen. Die südseitig angeordnete Fassade im 2.Obergeschoss ist mit flächigen Holztafeln verkleidet. Alternativ kann diese als Energiefassade mit PV-Flächen ausgerüstet werden.





