032 Sporthalle und Schule Rain
Offener Projektwettbewerb, 2024, 3. Rundgang
ARCHITEKTUR & STÄDTEBAU
Das Bauvolumen des Projekts FALTER entsteht aus den programmatischen Bedürfnissen und orientiert sich an den Dimensionen der benachbarten Mehrzweckanlage. Die Ausformulierung der Gebäudeteile widerspiegelt deren Nutzung, wodurch dem Gebäude eine eigene Identität zuteil wird.
Die durch das Stützenraster entstehenden Felder sind im Erdgeschoss durchgehend verglast. Opake Fassadenteile und die Fensterbrüstungen der Obergeschosse werden mit einer vertikalen Holzschalung in verschiedenen Ausformulierungen verkleidet. Über den Glasflächen wird als Witterungs- und Sonnenschutz ein Vordach aus PV-Schindeln montiert. Die horizontal abgewinkelt verlaufenden Bänder erinnern an die traditionellen Holzbauten der Region.
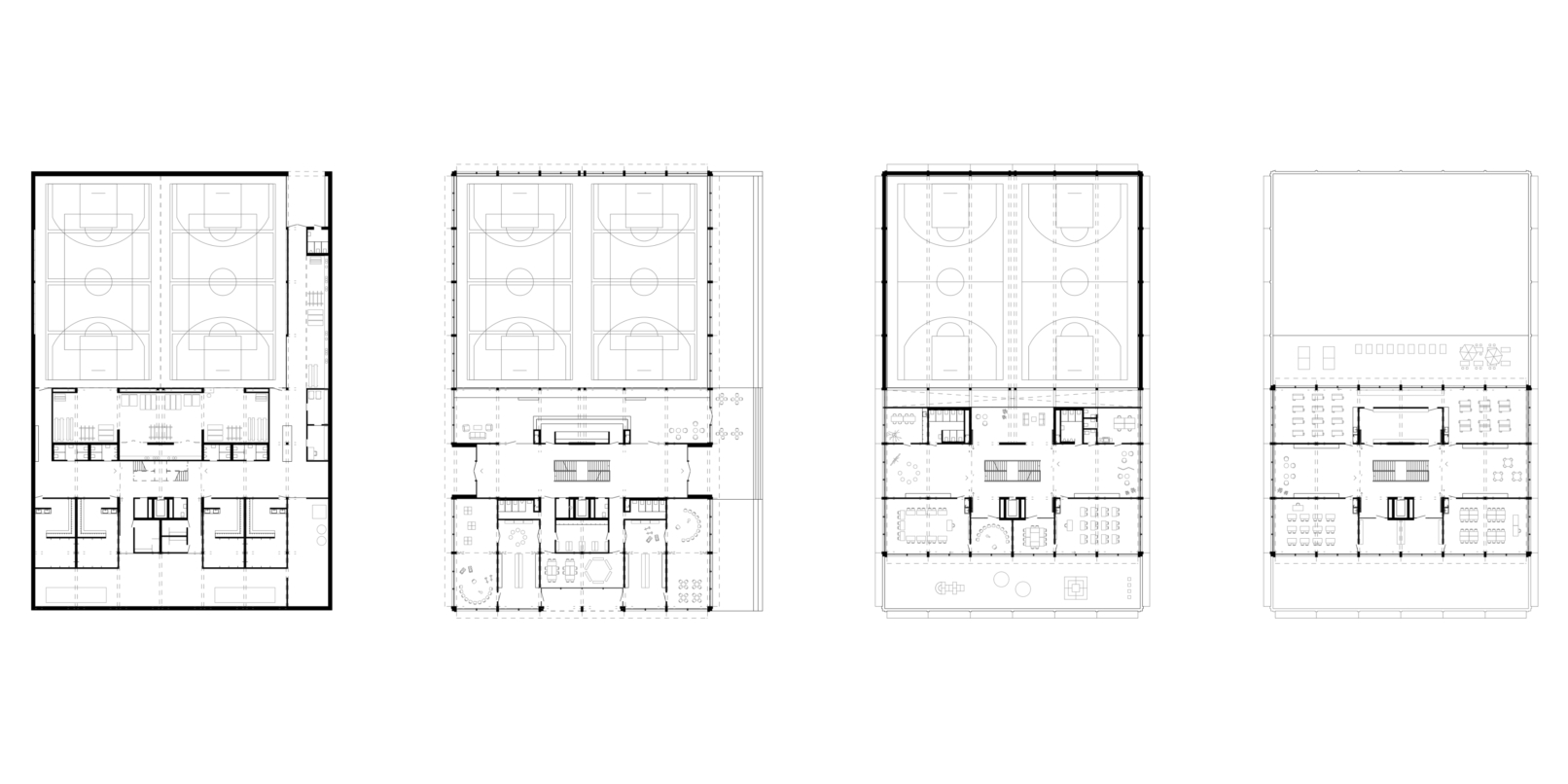
ORGANISATION & ERSCHLIESSUNG
Der grosse Platz vor der Sporthalle dient als Ankunfts- und Aufenthaltsort. Zentral angeordnet ist der Hauptzugang zum Gebäude, welcher als Eingang für die Schulräume und die Turnhalle funktioniert. Die klare Organisation der Klassen- und Gruppenräume ermöglicht eine hohe Flexibilität. Auf jedem Geschoss wird ein Aussenraum angeboten, welcher im Sommer als erweitertes Klassenzimmer funktioniert. Über das zentrale Treppenhaus haben SchülerInnen einen direkte Verbindung zu den Garderoben im Untergeschoss und somit kurze Wege zum Sportunterricht. Ein zweiter Eingang zur Sporthalle ermöglicht eine vom Schulbetrieb getrennte Vereinsnutzung. Auf der Südfassade des Gebäudes, direkt neben dem Spielplatz, befindet sich der Eingang zum Kindergarten.
KONSTRUKTION & NACHHALTIGKEIT
Abgesehen von den erdberührten Bauteilen und der Erschliessung wird das gesamte Gebäude als konsequenter Holzbau erstellt. Die Verwendung von Holz als Baustoff bietet zahlreiche Vorteile. Zum einen handelt es sich um einen nachwachsenden und regional verfügbaren Rohstoff, der im Vergleich zu herkömmlichen Baumaterialien eine geringere Treibhausgas-Intensität aufweist. Zum anderen ist Holz ein natürlicher Kohlenstoffspeicher, wodurch CO2 gebunden und somit die Umwelt geschont wird.
Acht Brettschichtholzträger überspannen die Turnhalle. Die Achsen der Tragstruktur werden beim Schulgebäude weitergezogen, die Spannweiten und die Dimensionen sind entsprechend reduziert. Zwischen den Hauptträgern spannen mit Lehmschüttung gefüllte Hohlkastenelemente. Die dadurch erzeugte Speichermasse dient der Nachtauskühlung im Sommer und der Wärmespeicherung im Winter. Die Skelettbauweise wird mit Holzrahmenbauwänden und Zugstangen ergänzt, welche zusammen mit dem Treppenkern die aussteifende Funktion übernehmen. Durch die steife Scheibe in den Dach- und Deckenebenen werden die horizontalen Kräfte auf die aussteifenden Holzrahmenbauwände, Betonwände und Aussteifungskreuze geleitet.
Das Gebäude ist aufgrund des klaren und geradlinigen Rasters wirtschaftlich gestaltet. In Kombination mit einem ausgeklügelten Haustechnikkonzept, das auf konsequente Systemtrennung setzt, kann der Holzbau äusserst effizient errichtet werden.
GEBÄUDESTANDARD & ZIRKULÄRES BAUEN
Für den Neubau wird der Standard Minergie-A-ECO angestrebt. Zusätzlich ist vorgesehen das Gebäude weitgehend nach dem Grundsatz „Design for Reuse“ zu erstellen. Die Bauteile werden so gefügt, dass diese in Einzelteile demontierbar und trennbar sind. Nach einem künftigen Rückbau des Gebäudes gelangen die Baustoffe zurück in den Materialkreislauf. So werden Ressourcen geschont und ein wichtiger Beitrag zum zirkulären Bauen geleistet. Der Einsatz von bereits verwendeten Materialien (Reuse) spart zudem graue Energie bei der Erstellung des Gebäudes.
UMGEBUNGSGESTALTUNG
Zwischen der bestehenden Schulanlage und dem Neubau entsteht ein Platz mit mehrheitlich sickerfähigen Belägen und hoher Aufenthaltsqualität. Der Aussenraum wird zur Schnittstelle zwischen Schule, Turnhalle, Kindergarten, Aussensportflächen und den beiden Spielplätzen. Südseitig vom Gebäude schaffen diverse Baumgruppen mit einheimischen Arten schattige Plätze im Sommer.
Verwandte Projekte:
035 Kindergarten und Hort Schaffhausen
034 Primarschule mit Turnhalle Visp





